r o s a s a n t o s . a r q u i t e c t o s


r o s a s a n t o s . a r q u i t e c t o s

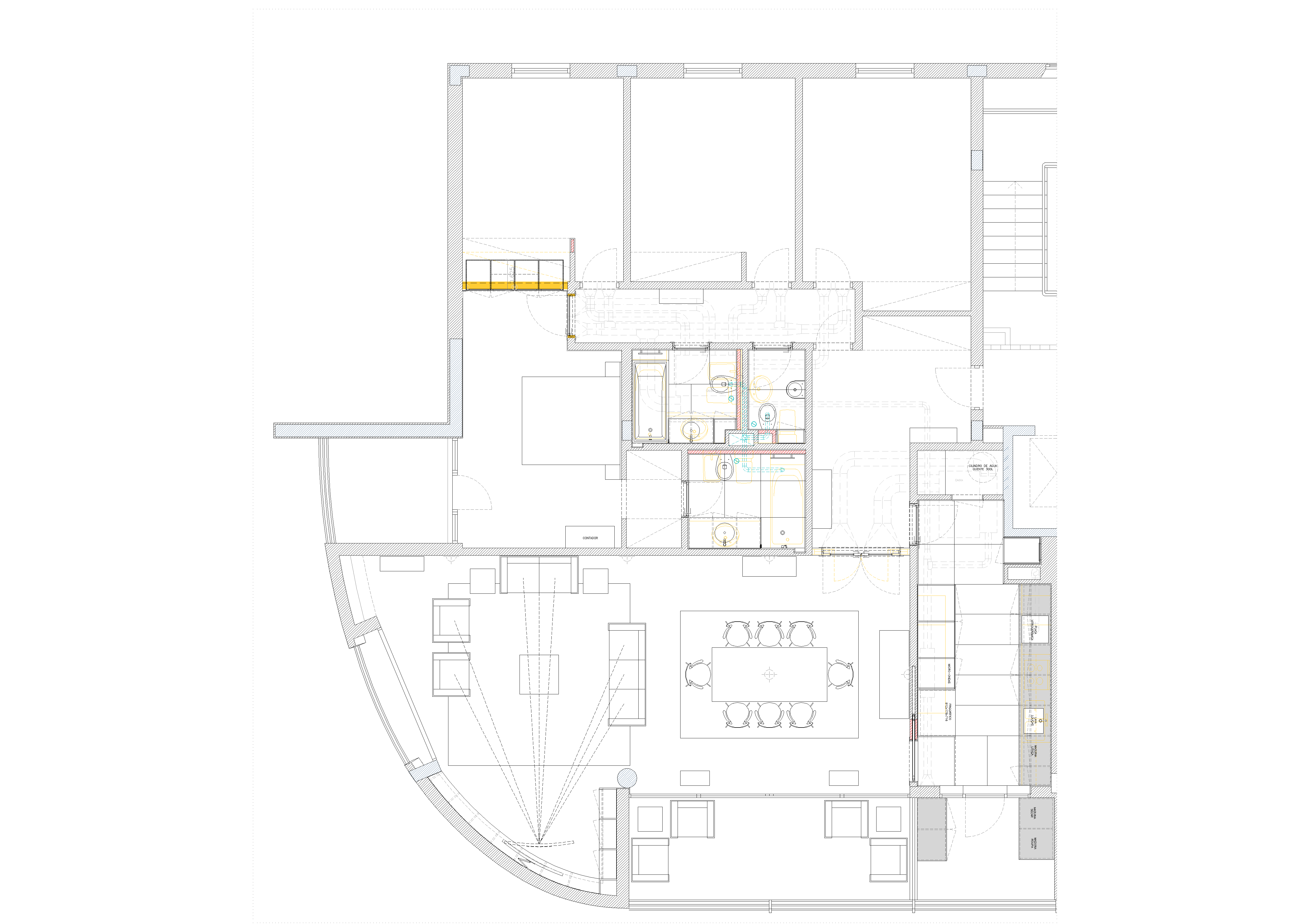
APARTMENT  |  CCAC
Lisboa, PT  |  Constructed





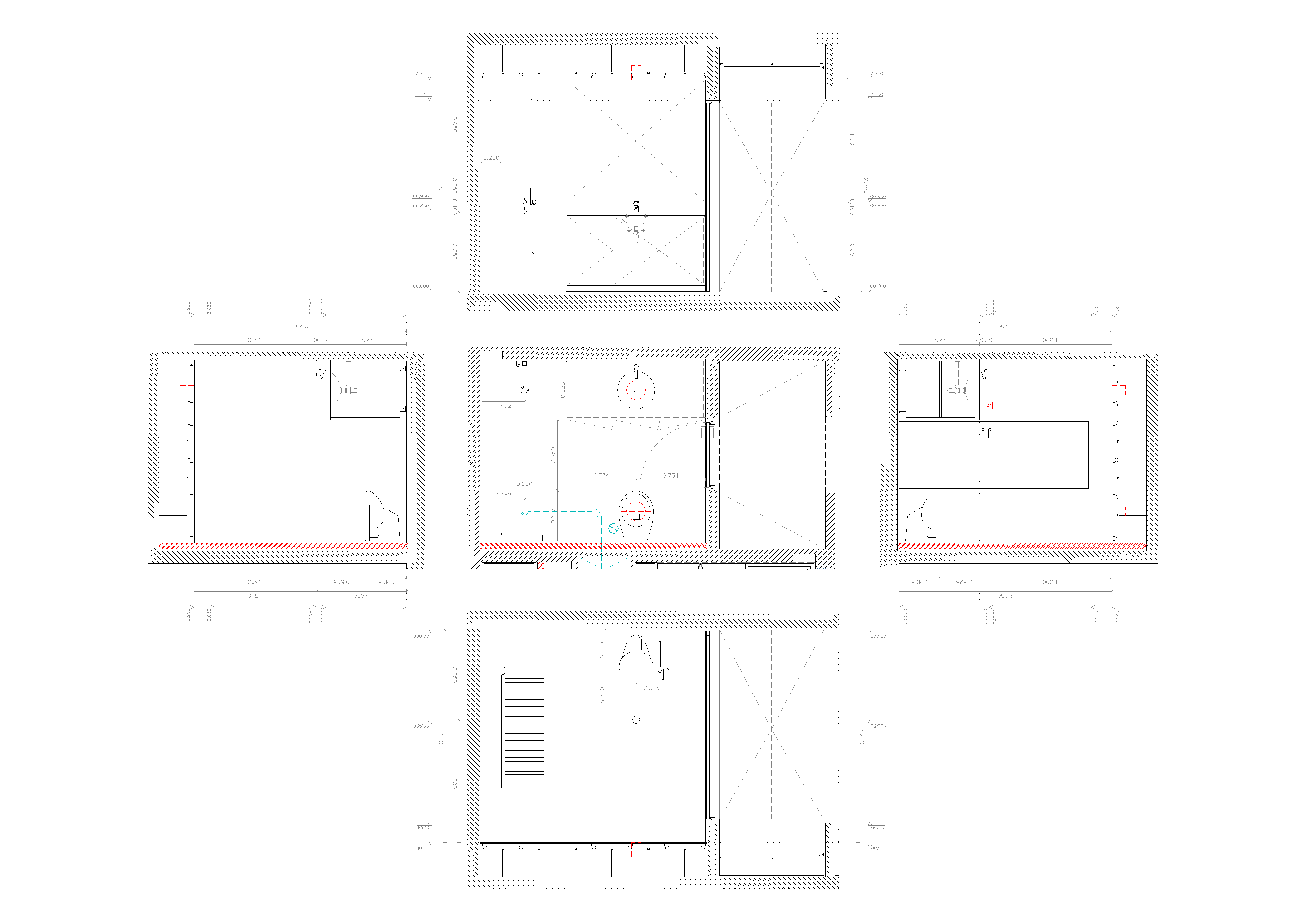
APARTMENT  |  CCAC
Lisboa, PT  |  Constructed