r o s a s a n t o s . a r q u i t e c t o s


r o s a s a n t o s . a r q u i t e c t o s

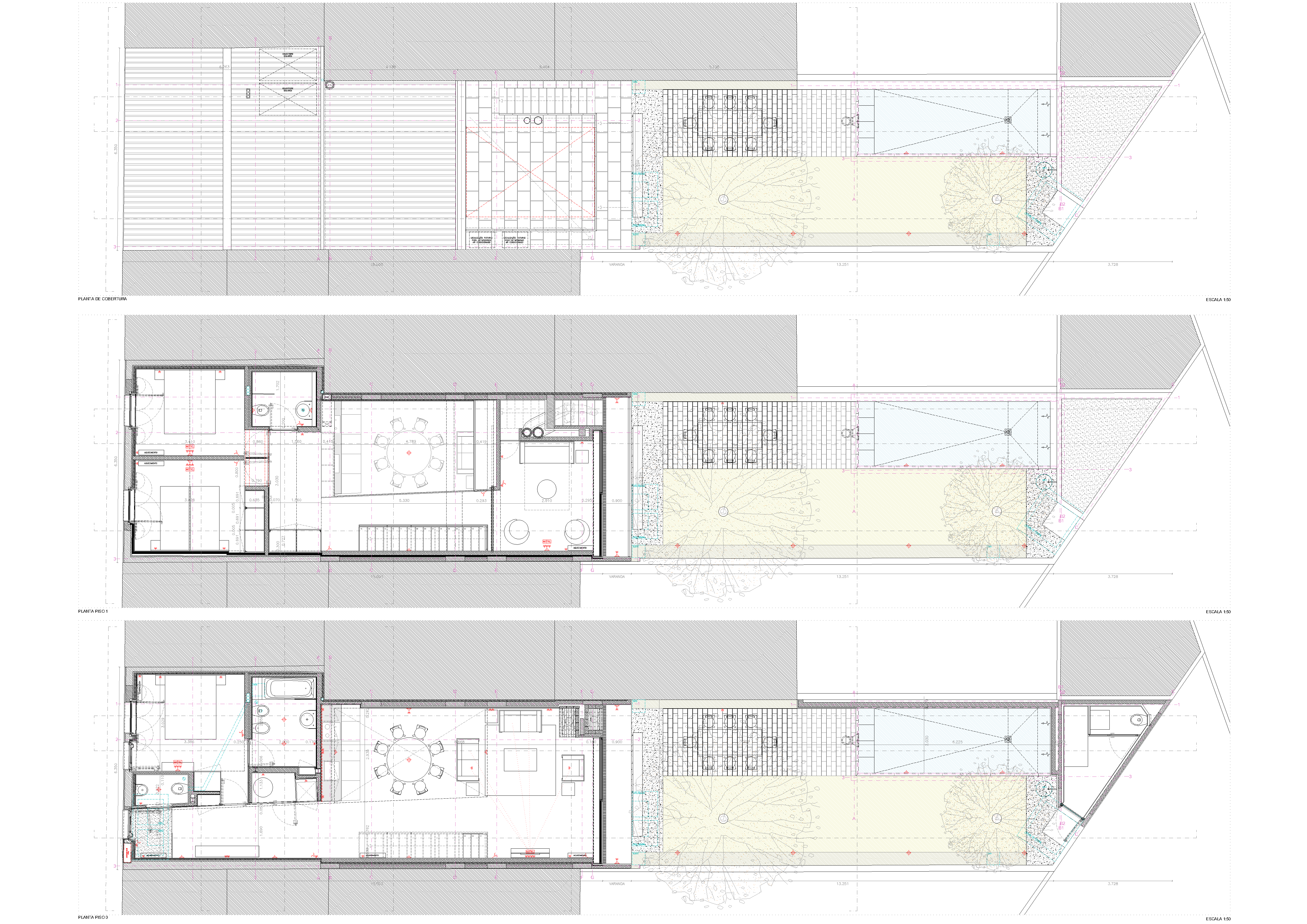
HOUSE  |  FCFC
Porto Covo , PT  |  ︎  João Guimarães





HOUSE  |  FCFC
Porto Covo , PT  |  ︎  João Guimarães